Precast & Rebar Detailing Services
At Prisma Engineering Services, we specialize in providing top-tier Precast & Rebar detailing services for a wide array of Precast structures. Our commitment extends beyond mere service delivery; it encompasses the creation of constructible models, detailed reports, and an extensive drawing package featuring workshop details — all meticulously crafted using the advanced capabilities of Latest Software's.
Within the realm of Precast detailing, we excel in crafting intricate models covering vital elements such as Connections, Rebar detailing, and the generation of thorough Precast erection drawings, all utilizing state-of-the-art software tools. Our unwavering dedication to precision is evident in the creation of detailed connection views, accurate bills of materials, immersive walkthroughs, and meticulously prepared shop tickets – all designed to meet the exacting standards of fabrication. Our team, comprising skilled professionals with a wealth of experience, is dedicated to ensuring that your projects not only meet but exceed industry standards.
In the sphere of Rebar detailing, we demonstrate expertise in generating comprehensive reinforcement drawings that enhance the structural integrity of your projects. Leveraging the capabilities of the latest software, we ensure precise Rebar detailing for optimal performance and compliance with industry standards. Our commitment to delivering exceptional services extends to creating detailed Rebar connection views, accurate material quantity assessments, and the production of shop tickets that streamline the fabrication process. We understand that the success of any construction project lies in the seamless integration of both Precast and Rebar detailing services.
Choosing Prisma Engineering Services as your partner means tapping into a wealth of experience, a commitment to precision, and the seamless integration of cutting-edge technology. Experience the transformative impact of our dedication to delivering top-notch detailing services as we work collaboratively to bring your Precast projects to life.
PRECAST, REBAR & BIM DETAILING SERVICES
PRECAST DETAILING SERVICES
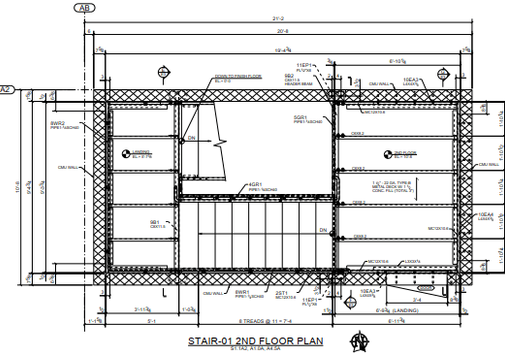
General Arrangement Drawings
Exterior & Interior Elevations
Wall Panel Layouts
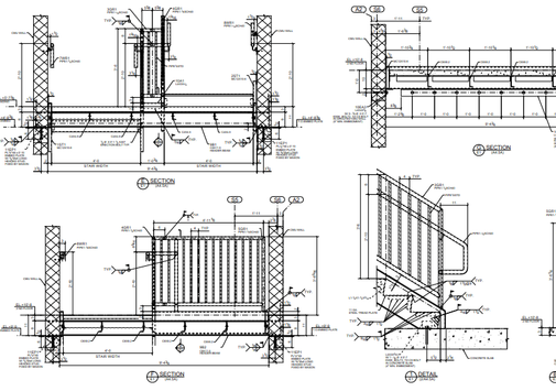
Detailed Sections
Panel Fixing & Connection Details
Precast Shop Drawings
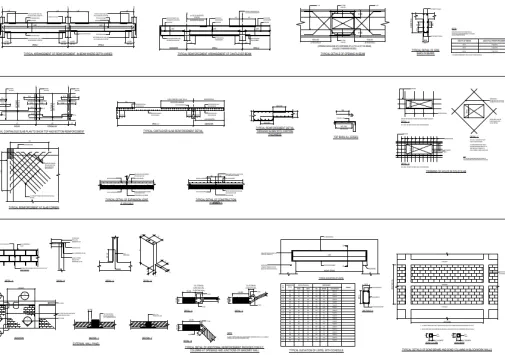
Bar Bending Schedules (BBS)
Quantity Take-Offs
Column & Beam Detailing
Staircase & Landing Detailing
Rebar Detailing Services
Concrete BIM Modeling
Rebar Detailing
Post-Tensioned Detailing
Rebar Estimation
Bar Bending Schedules (BBS)
Bill of Materials (BOM)
Intelligent Concrete Modeling
Pour Planning & Coordination
Clash Detection & Resolution
As-Built Documentation
Principles of Operation
American Standards (ACI 315-99)
British Standards (BS 8666, BS 4449)
Eurocodes (EC2)
ACI – American Concrete Institute
PCI – Precast/Prestressed Concrete Institute
AS – Australian Standards
BS – British Standards
CISC – Canadian Institute of Steel Construction
Euro Standards






